40+ Lead Paint Disclosure Pdf
Lead Based Paint Disclosure Pdf Downloadable Turbotenant

The 2021 Report Of The Lancet Countdown On Health And Climate Change Code Red For A Healthy Future The Lancet
Free Printable Lead Based Paint Disclosure Pdf Tenants Form For Renters
Pdf The Differential Effects Of Face To Face And Computer Interview Modes
Buy Real Estate Pending Checklist Online In India Etsy
Lead Based Paint Disclosure Forms
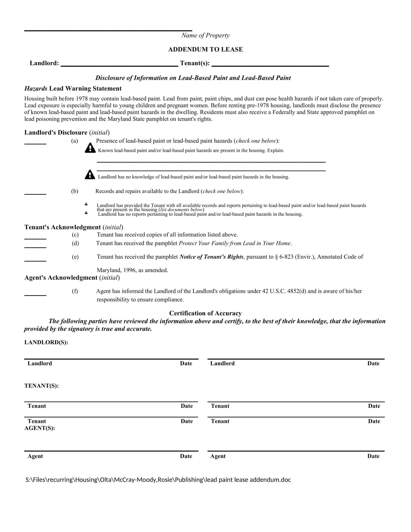
Free Printable Lead Based Paint Disclosure Pdf Tenants Form For Renters
Free Printable Lead Based Paint Disclosure Pdf Tenants Form For Renters
Realtor Tiffany Gaitan Helotes Tx
Free Printable Lead Based Paint Disclosure Pdf Tenants Form For Renters
Free Printable Lead Based Paint Disclosure Pdf Tenants Form For Renters
Free Lead Based Paint Disclosure Form Pdf
Free Printable Lead Based Paint Disclosure Pdf Tenants Form For Renters
Download Lead Based Paint Disclosure Forms Pdf Xfdl Freedownloads Net
Free Printable Lead Based Paint Disclosure Pdf Tenants Form For Renters
Lead Paint Disclosure New Zealand Legal Templates Agreements Contracts And Forms
Free Printable Lead Based Paint Disclosure Pdf Tenants Form For Renters
Free Lead Based Paint Disclosure Form For Homebuyers Pdf Word